Grundstück Groß Zastrow Groß Zastrow - 72.495€ | Angebot:25675944

Ländlich und Ruhig!! 4 Baugrundstücke im Greifswalder Umland.

Informationen zur Immobilie:
Ort
17121 Groß Zastrow
Objektart
Grundstück
Größe
ca.
72.495 €
Kaufpreis
Beschreibung:
Mehr zum Angebot Ländlich und Ruhig!! 4 Baugrundstücke im Greifswalder Umland.:

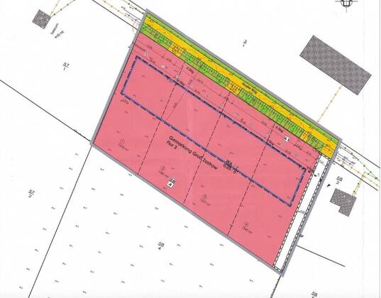
Vielen Dank für Ihr Interesse an diesem Objekt! Zu verkaufen sind vier noch zu vermessende Grundstücke in Groß Zastrow. Es handelt sich um eine Lückenbebauung. Ein ausgeschriebener Bebauungsplan liegt vor.... mehr erfahren
weitere Grundstücke
social facebook social youtube social instagram social tiktok

Copyright © 2000 - 2026 | 1A Infosysteme GmbH | Content by: 1A-Anzeigenmarkt.de 28.05.2026